Home
Das Haus
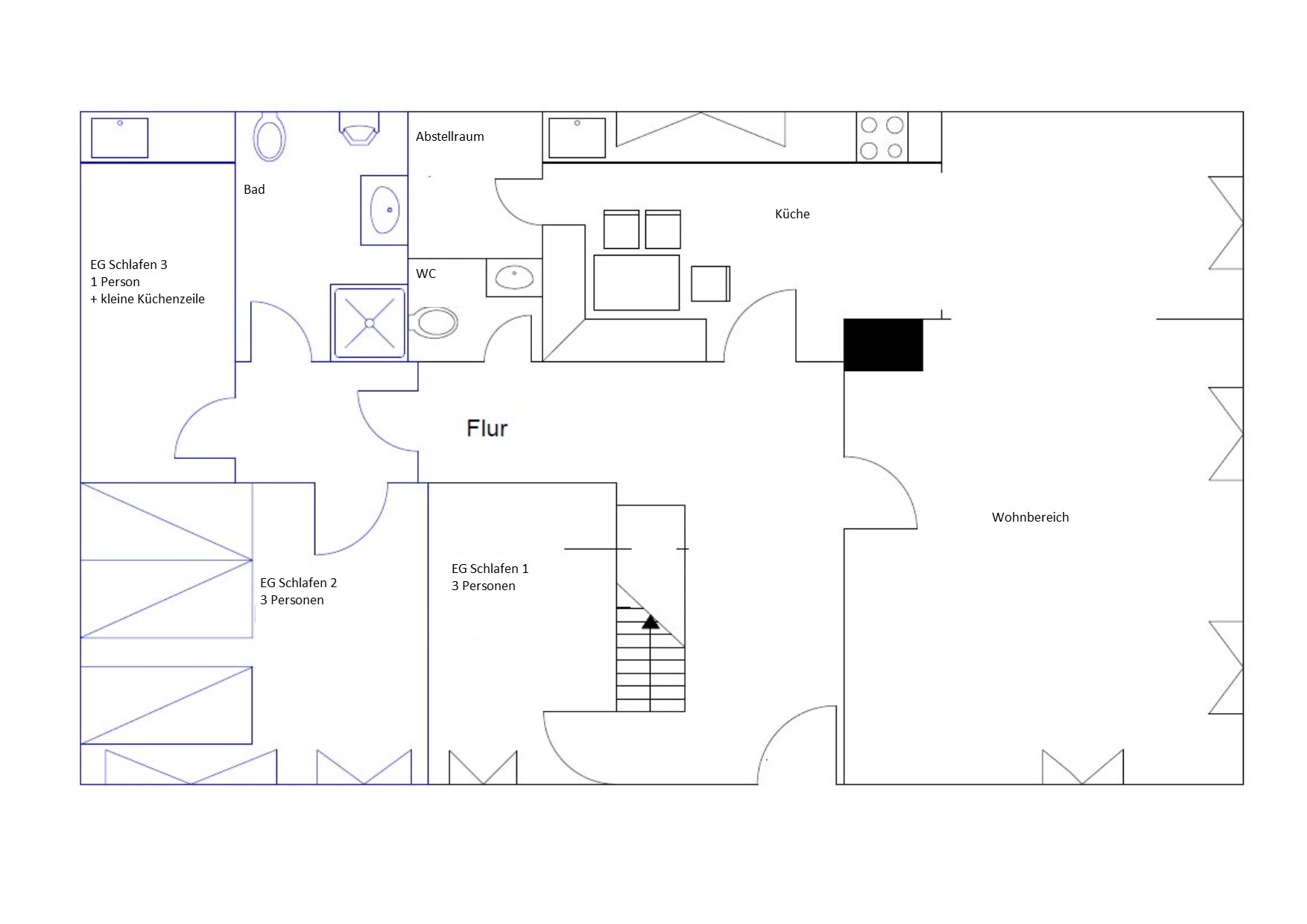
Erdgeschoss
1. Stock
Dachboden
Bilder
Reservieren
Info
Links
Freizeit
Anfahrt
Die Hassberge
Hausordnung
Ferienhaus in Kreuzthal
Das Erdgeschoss
IMPRESSUM